concursos
contests
Navegación del sitio
[Omitir]
concursos
Inicio
edificios públicos
vivienda colectiva
vivienda unifamiliar
diseño interior
urbanismo
contacto
Centro cívico Zabalgana. Vitoria-Gasteiz
Anterior
Siguiente
Lista
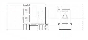
planta sótano
[Regresar al inicio]