edificios públicos
public buildings
Navegación del sitio
[Omitir]
edificios públicos
inicio
vivienda colectiva
vivienda unifamiliar
interior
urbanismo
concursos
publicaciones
contacto
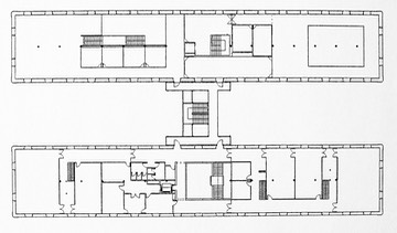
Rehabilitación cuartel. Pab.Univer. UPV-EHU. Vitoria-Gasteiz
Anterior
Siguiente
Lista
planta superior
[Regresar al inicio]