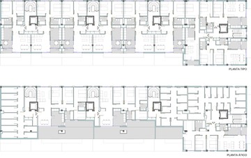
47 viviendas en Salburua. Vitoria-Gasteiz