urbanismo

 urban design

Navegación del sitio[Omitir]

  • urbanismo
  • inicio
  • edificios públicos
  • vivienda colectiva
  • unifamiliares
  • interior
  • concursos
  • publicaciones
  • contacto

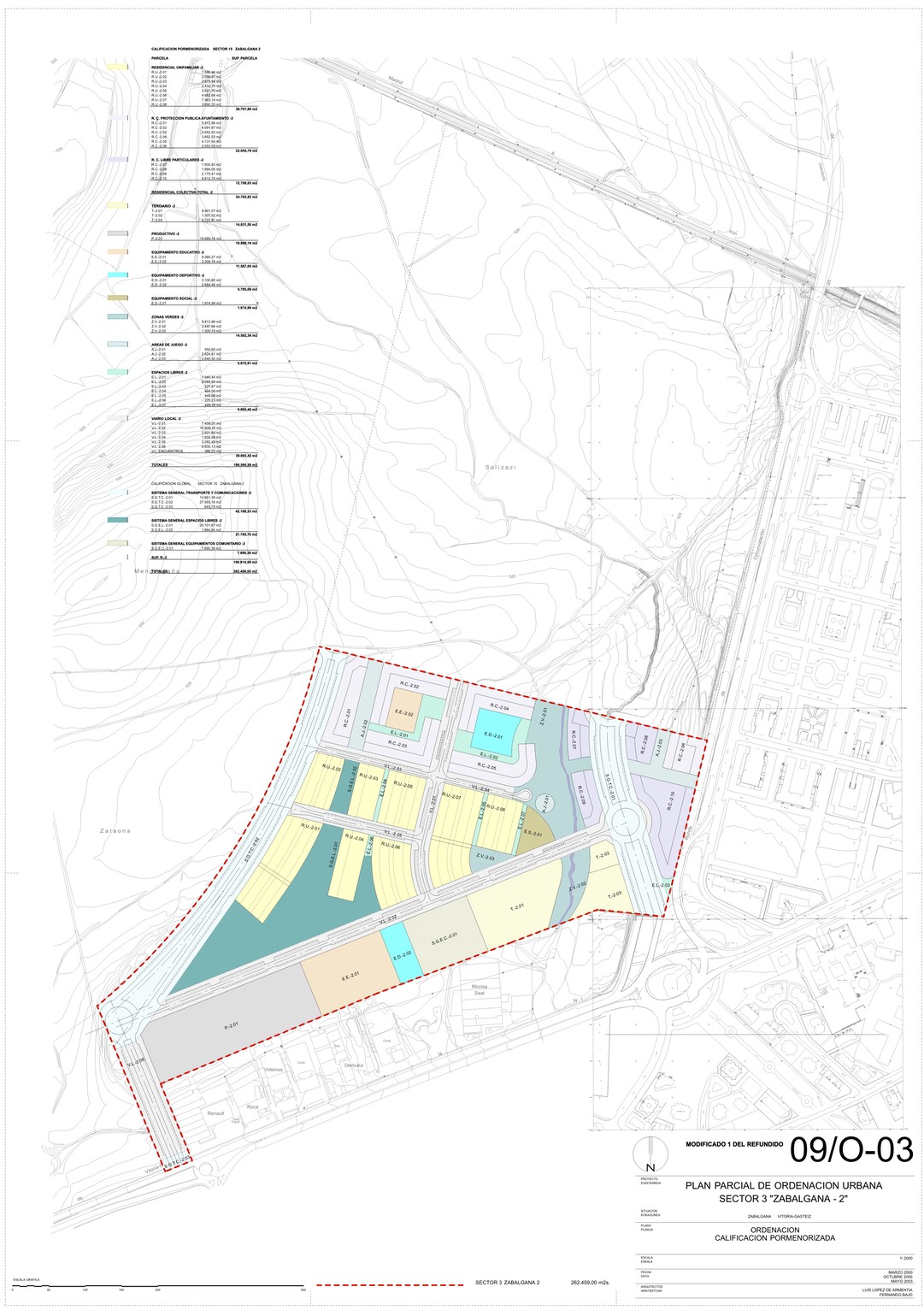
Planes Parciales de Ordenación Urbana Sectores 3, 5, 6 y 14. Zabalgana, Vitoria-Gasteiz


S3 ZABALGANA_calificacion pormenorizada

Plan Parcial de Ordenación Urbana Sector 3. Zabalgana, Vitoria-Gasteiz

S5 ZABALGANA_calificacion pormenorizada

Plan Parcial de Ordenación Urbana Sector 5. Zabalgana, Vitoria-Gasteiz

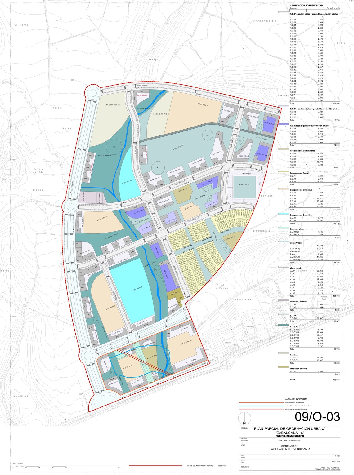
S6 ZABALGANA_calificacion pormenorizada. estudio densificacion

Plan Parcial de Ordenación Urbana Sector 6. Zabalgana, Vitoria-Gasteiz

S2 ZABALGANA_calificacion pormenorizada

Plan Parcial de Ordenación Urbana Sector 14. Zabalgana, Vitoria-Gasteiz


[Regresar al inicio]