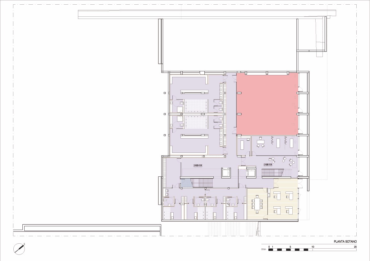
Polideportivo Ibarra. Aretxabaleta

01sotano copia