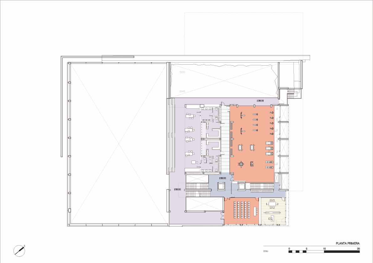
Polideportivo Ibarra. Aretxabaleta

01PPRIMERA250 copia